|
|
M & B Estimating Services |
![]() |
| Home | Who We Are | What We Do | Jobs Bidding | Contact Us |
Earthwork Takeoff
M & B Estimating Services performs plan takeoff, lumber takeoff and earthwork takeoff.
Our services include plan take-off, detailed lumber take-off and earthwork take-off. The plan take-off can be time consuming and cumbersome. Our take-off services can include any item or component on the plan, such as lumber or trim materials - or we can do a complete plan takeoff of all items.
|
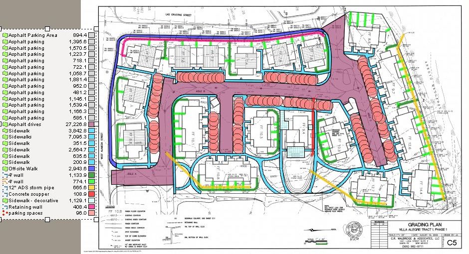
Earthwork Take-off - We can provide a detailed take-off of the earthwork from the engineered grading plans, showing the site areas with cuts and fills. This can be used to analyze the grading design in order to reach a balanced site. It also gives you the quantities when negotiating with the grading contractors. The quantities are shown in an Excel formatted spreadsheet with screen shots emailed to you. These are some examples of the take-off "screen shots". Digitized Site Plan - Brown Shades are Existing Grades, Blue Shades are Paving Subgrades
Digitized Site Plan - Cuts (red) and Fills (blue)
|
| Home | Who We Are | What We Do | Jobs Bidding | Contact Us |
|
M & B Group, Inc., info@m-bgroup.com |
Web Hosting by InMotion Hosting |